In the second half of 2021, our company successfully completed the replacement of cabin carpet of an A319 aircraft, providing comprehensive services including on-site survey, scheme research, engineering design, carpet procurement and installation assistance, and finally successfully obtained the modification design approval document MDA issued by CAAC.
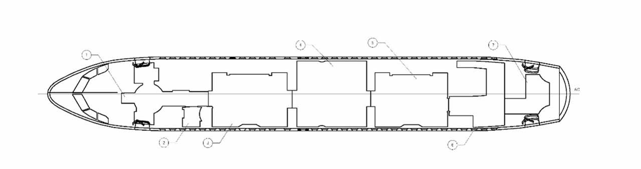
Engineering Drawing



Overall design drawing of carpet pattern


Carpet – Post mod



Modification design approval letter